TOONG
Hình ảnh sản phẩm
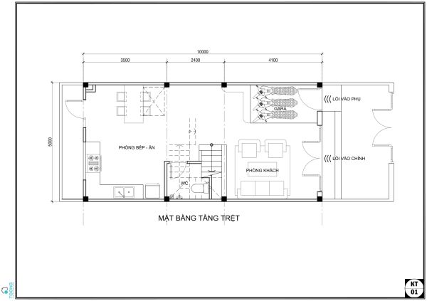
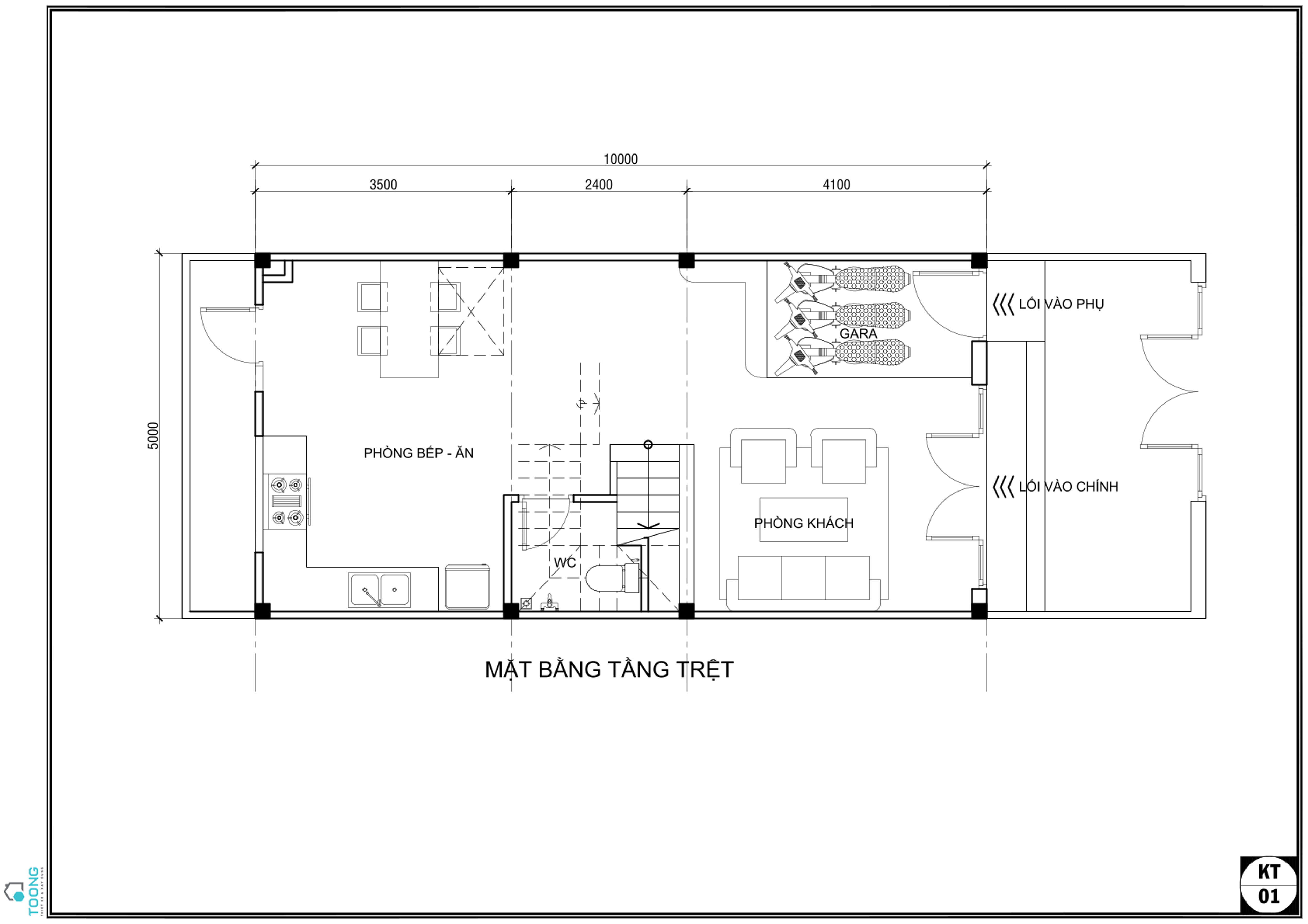
CHUYỆN XÂY NHÀ
Dự án nhà 5x10
Lượt xem : 126
| Diện tích | 5mx10m |
| Vị trí | Quận 10 |
| Năm thi công | 2025 |
| Quy mô | 1 trệt, 2 lầu, 1 sân thượng |
| Đơn giá tham khảo | |
| Phần thô | 1,250,000,000 VNĐ |
| Phần hoàn thiện | 850,000,000 VNĐ |
| Phần nội thất | 550,000,000 VĐN |
Liên hệ
Sản phẩm liên quan
Dương Quảng Hàm - Gò Vấp
Liên hệ
15 Đường số 59 - P.14 - GV
5.950.000.000 đ
Đường Số 4 - Lê Văn Thọ - P.16 - Gò Vấp
7.800.000.000 đ
Nguyễn Văn Khối - P.9 - GV
5.580.000.000 đ
Nguyễn Văn Lượng - Gò Vấp
Liên hệ
Phan Huy Ích - P.12 - Gò Vấp - HCM
6.980.000.000 đ









